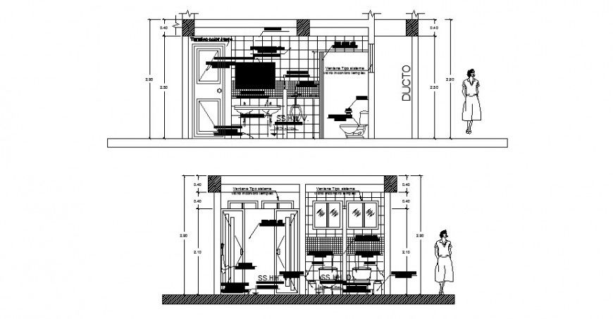
Toilet sectional elevation drawing in dwg AutoCAD file.
Description
Toilet sectional elevation drawing in dwg AutoCAD file. This fiule includes the detail drawing of the toilet with wall a sectional elevation, side sectional elevation, dimensions, sanitary ware detail, description, etc.
File Type:
DWG
File Size:
1.9 MB
Category::
Interior Design
Sub Category::
Bathroom Interior Design
type:
Gold

Uploaded by:
Eiz
Luna

