Toilet plan and elevation detail drawing in dwg AutoCAD file.
Description
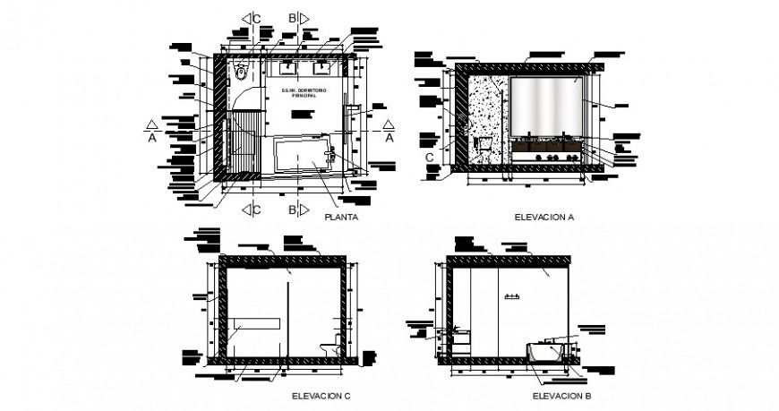
Toilet plan and elevation detail drawing in dwg AutoCAD file. This file includes the detail top view plan, with wash basin, W.C, bath tub, shower area, sectional elevation A, elevation B, elevation C, mirror detail, wash basin detail, bath tub sectional elevation detail, dimensions, etc.
File Type:
DWG
File Size:
162 KB
Category::
Interior Design
Sub Category::
Bathroom Interior Design
type:
Gold

Uploaded by:
Eiz
Luna

