Staircase and Foundation Construction Details in DWG file

Staircase and Foundation Construction Details in DWG file
Profile

Uploaded by:

Eiz

Luna

Description

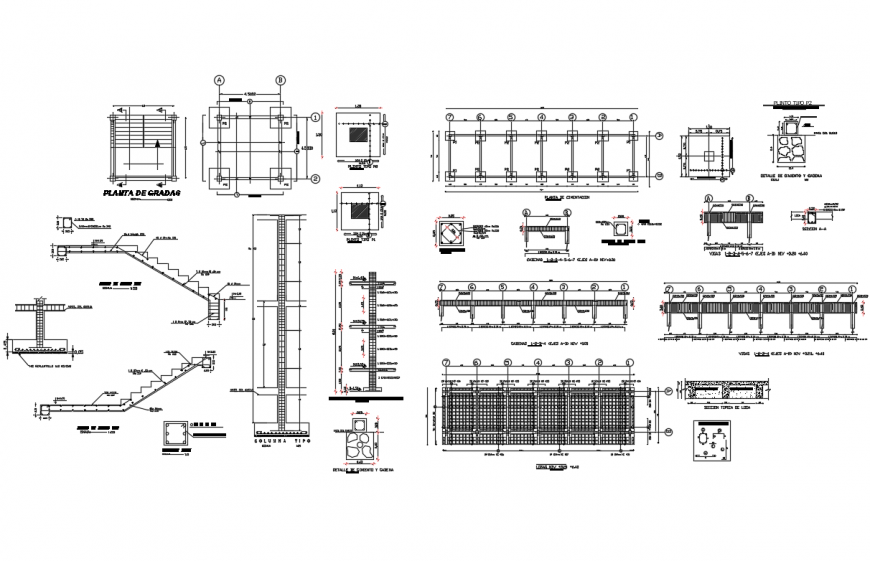
Staircase, foundation and construction cad drawing details that includes a detailed view of foundation plan, structure details, floor construction, beam construction, floor wise structure and constructive details with memory of materials, footings details, staircase construction and sectional details, steps details, dimensions, column view, beam construction, covers closure type  and , soil  burried wall closure type  and , exterior solera, holes, interior partition, granite veneer of the country with steel supports and much more of building construction details.

Profile

Uploaded by:

Eiz

Luna

find Latest

Related Files