Plan detail of sanitary bathroom unit and installation block layout file in dwg format
Description
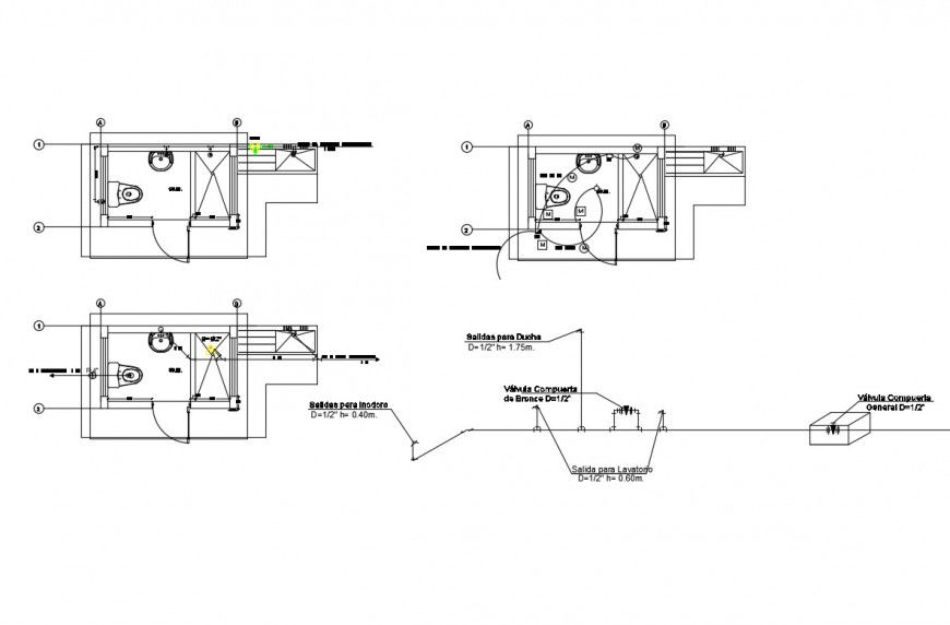
Plan detail of sanitary bathroom unit and installation block layout file in dwg format, plan view detail, wall and flooring detail, washbasin unit detail, water closet detail, bath-tub detail, door and vent detail, dimension detail, sanitary installation plan flow diagram block detail, etc.
File Type:
DWG
File Size:
1.1 MB
Category::
Interior Design
Sub Category::
Bathroom Interior Design
type:
Gold

Uploaded by:
Eiz
Luna

