Hospital Foundation Plan Lay-out
Description
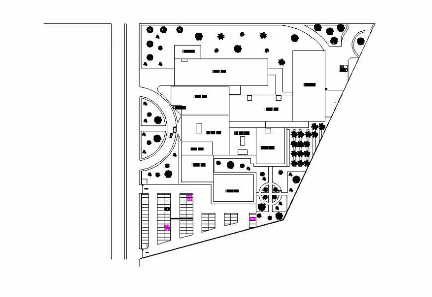
Hospital Foundation Plan Lay-out Download File. area estacionamiento personal administrativo, area jardinada, etc.
Uploaded by:
Eiz
Luna
Hospital Foundation Plan Lay-out Download File. area estacionamiento personal administrativo, area jardinada, etc.
Uploaded by:
Luna