Multi-family residential apartment with shopping center floor plan details dwg file
Description
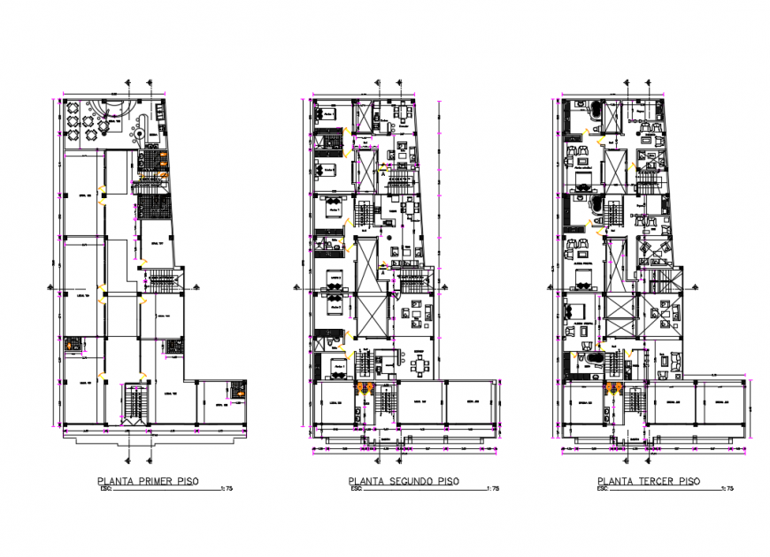
Multi-family residential apartment with shopping center floor plan details that includes a detailed view of ground floor, first floor, second, floor, parking area, shops, food center, main entry gate, tree an plants, mini garden, main entry house door, drawing room, living room, family hall, kitchen, dining area, indoor staircases, laundry area, balcony, bedroom, master bedroom, toilets and bathroom, indoor doors, furniture details and much more of apartment project.

Uploaded by:
Eiz
Luna

