Building column installation plan autocad file
Description
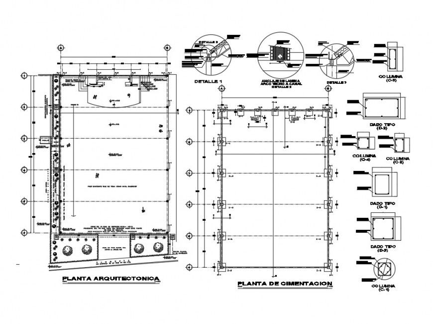
Building column installation plan autocad file, plan view detail, wall and flooring detail, column installation detail, dimension detail, section line detail, reinforcement detail in tension and compression zone, hook and bent up bars detail, effective cover detail, main and distribution bars detail, reinforced concrete cement (RCC) structure, etc.
File Type:
DWG
File Size:
1.1 MB
Category::
Construction
Sub Category::
Reinforced Cement Concrete Details
type:
Gold

Uploaded by:
Eiz
Luna

