Sanitary unit detail 2d view CAD block layout file in dwg format
Description
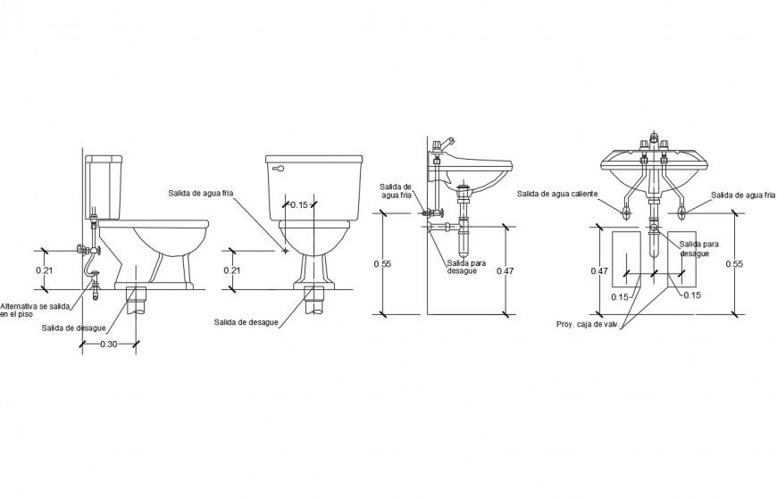
Sanitary unit detail 2d view CAD block layout file in dwg format, side elevation detail, toilet seat detail, ceramic material block, front elevation detail, flush tank detail, dimesion detail, plumbing pipe detail, wash-basin detail, plumbing pipe detail, tap detail, etc.
File Type:
DWG
File Size:
169 KB
Category::
Dwg Cad Blocks
Sub Category::
Sanitary CAD Blocks And Model
type:
Gold

Uploaded by:
Eiz
Luna

