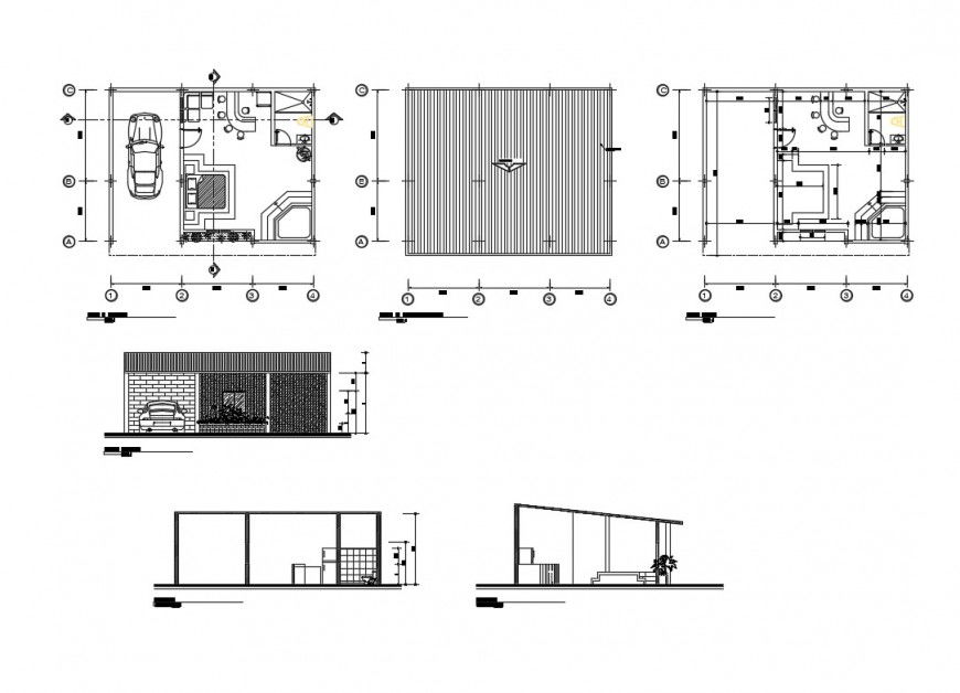
House plan, elevation and sectional detail 2d view layout file in autocad format
Description
House plan, elevation and sectional detail 2d view layout file in autocad format, plan view detail, roof plan detail, hatching detail, door and window detail, section line detail, furniture detail, roofing structure, dimension detail, sanitary bathroom and toilet detail, floor level detail, front elevation detail, parking space detail, leveling detail, section detail, etc.

Uploaded by:
Eiz
Luna

