Sanitary wall elevation, section, plan and installation details dwg file
Description
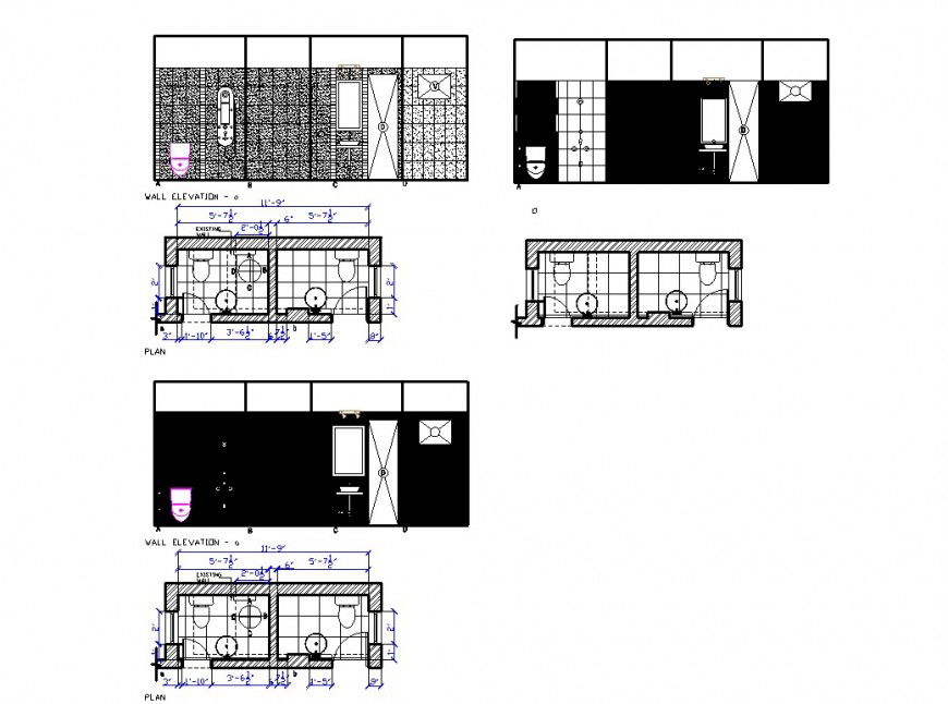
Sanitary wall elevation, section, plan and installation details that includes a detailed view of male toilet sectional details, female toilet sectional details, passage, sanitary equipment installation details, doors and ventilation details, plumbing details, interior details, dimensions details, wall section details and much more of sanitary installation details.
File Type:
DWG
File Size:
291 KB
Category::
Interior Design
Sub Category::
Bathroom Interior Design
type:
Gold

Uploaded by:
Eiz
Luna

