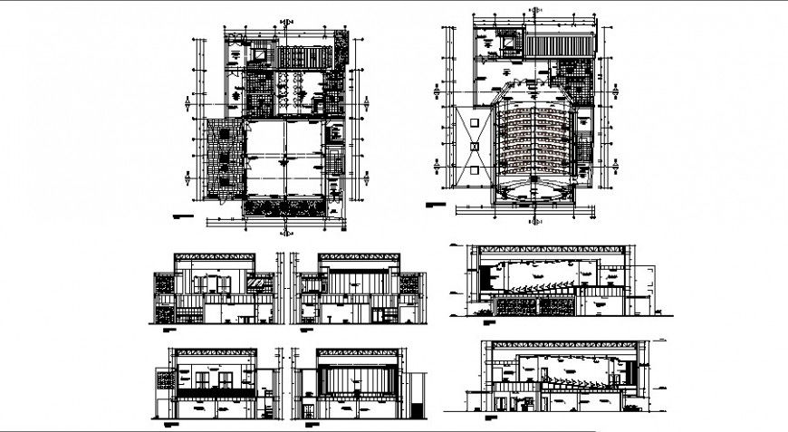
Two floor theater detail drawing in dwg AutoCAD file.
Description
Two floor theater detail drawing in dwg AutoCAD file. This file includes the detail drawing of the two floor theater with top view plan, cutout plan, sectional elevation, elevation, side section detail, furniture detail, section line, dimensions, description, etc.

Uploaded by:
Eiz
Luna

