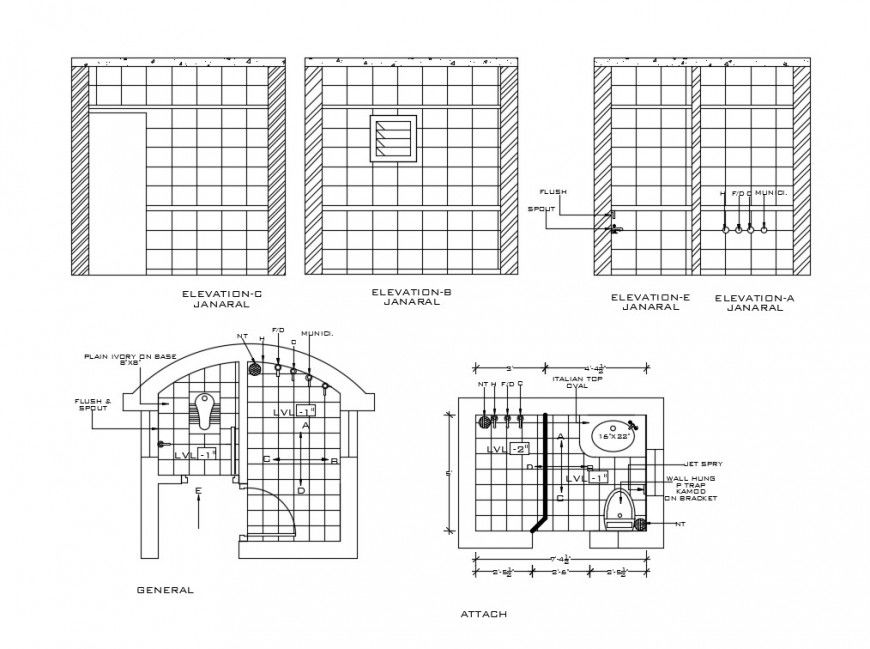
Elevation and plan detail of sanitary bathroom block layout file in dwg format
Description
Elevation and plan detail of sanitary bathroom block layout file in dwg format, plan view detail, wall and flooring detail, door and vent detail, water-closet detail, tap detail, washbasin unit detail, front elevation detail, hatching detail, rear elevation detail, etc.
File Type:
DWG
File Size:
104 KB
Category::
Interior Design
Sub Category::
Bathroom Interior Design
type:
Gold

Uploaded by:
Eiz
Luna

