Office building floors and cover plan cad drawing details dwg file
Description
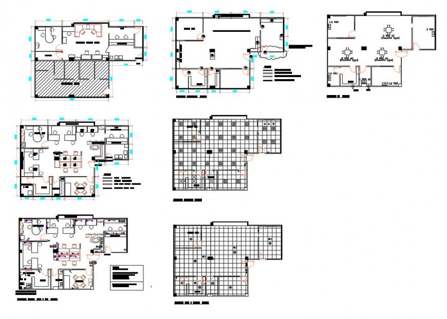
Office building floors and cover plan cad drawing details that includes a detailed view of reception area, waiting area, cabin, bottom false ceiling, computer lab, bottom of grid ceiling, counselling room and library, conference room, manager cabin, meeting room, cleaning department, departmental office, smoking area, head offices, accountant rooms, pantry, kitchen, dining area, server room, meeting room, pantry and much more of office building details.

Uploaded by:
Eiz
Luna

