Elevator internal detail drawing in dwg AutoCAD file.
Description
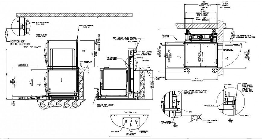
Elevator internal detail drawing in dwg AutoCAD file. this file includes the detail drawing of th elevator with internal section detail, lending detail, car station detail, switch box detail, platform gate detail, dimensions, description, etc.
File Type:
DWG
File Size:
1 MB
Category::
Mechanical and Machinery
Sub Category::
Elevator Details
type:
Gold

Uploaded by:
Eiz
Luna

