Sanitary section, plan and installation details of villa dwg file
Description
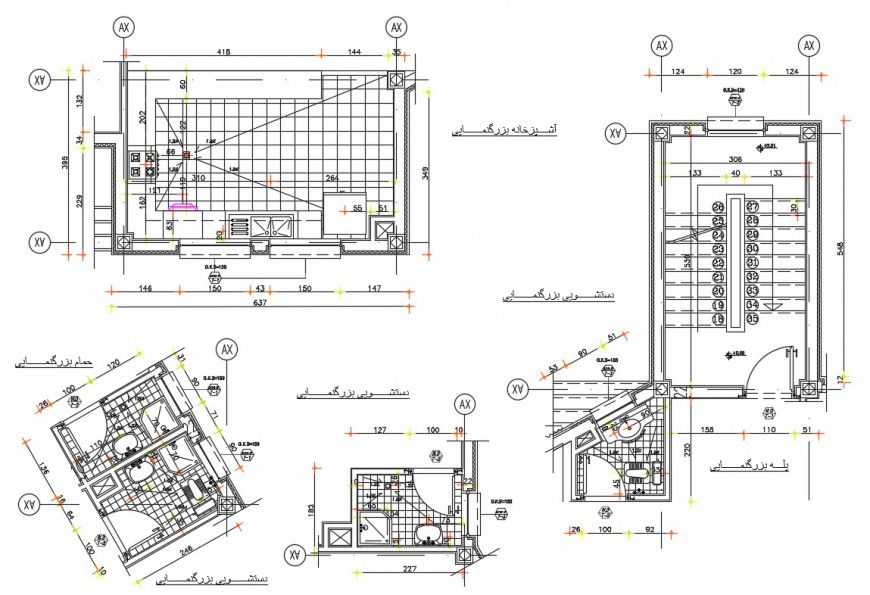
Sanitary section, plan and installation details of villa that includes a detailed view of male toilet sectional details, female toilet sectional details, passage, sanitary equipment installation details, doors and ventilation details, plumbing details, interior details, dimensions details, wall section details and much more of sanitary installation details.

Uploaded by:
Eiz
Luna
