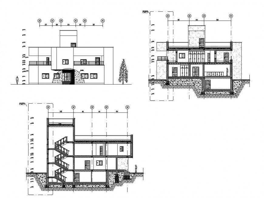
Facade and back elevation and main section details of villa dwg file
Description
Facade and back elevation and main section details of villa that includes a detailed view of flooring view, doors and windows view, staircase view, balcony view, wall design, dimensions, roof or terrace view, tree view, staircase sectional details, footings view and much more of villa project.

Uploaded by:
Eiz
Luna

