Dehradoon Cotes resort bedrooms plan and furniture layout details dwg file
Description
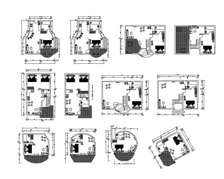
Dehradoon Cotes resort bedrooms plan and furniture layout details that includes a detailed view of media room, children bedroom, small dining table, sanitary facilities, ventilation details, car pantry details, dimensions details, wooden sheet details, wardrobe details and much more of bedroom details,
File Type:
DWG
File Size:
789 KB
Category::
Interior Design
Sub Category::
Bathroom Interior Design
type:
Gold

Uploaded by:
Eiz
Luna

