Three-story apartment detail 2d view layout plan in autocad format
Description
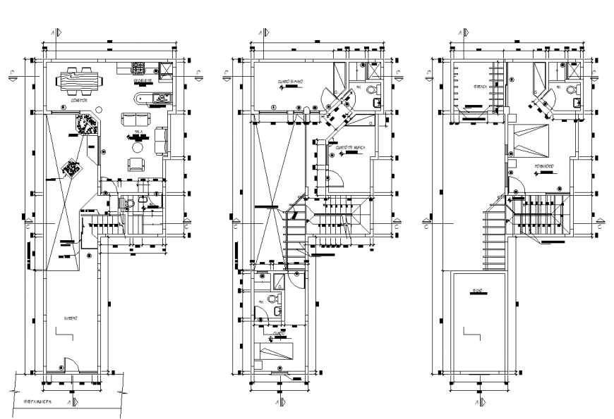
Three-story apartment detail 2d view layout plan in autocad format, plan view detail, wall and flooring detail, furniture detail, door and window detail, RCC structure, staircase detail, section line detail, bedroom detail, living room detail, dining and kitchen area detail, RCC structure, floor level detail, sanitary toilet and bathroom area detail, etc.

Uploaded by:
Eiz
Luna
