One family house ground and first floor plan cad drawing details dwg file
Description
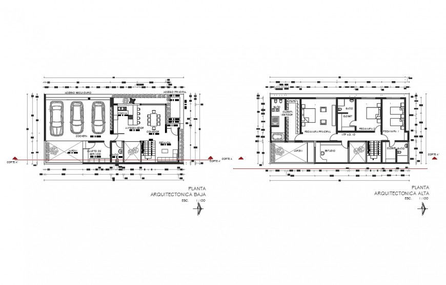
One family house ground and first floor plan cad drawing details that includes a detailed view of car parking area, mini garden, main entry house door, drawing room, lift lobby, passage, corridor, living room, family hall, kitchen, dining area, indoor staircases, laundry area, balcony, bedroom, master bedroom, toilets and bathroom, indoor doors, furniture details and much more of house details.

Uploaded by:
Eiz
Luna

