Detail of foundations and anchors of castles and chains dwg file
Description
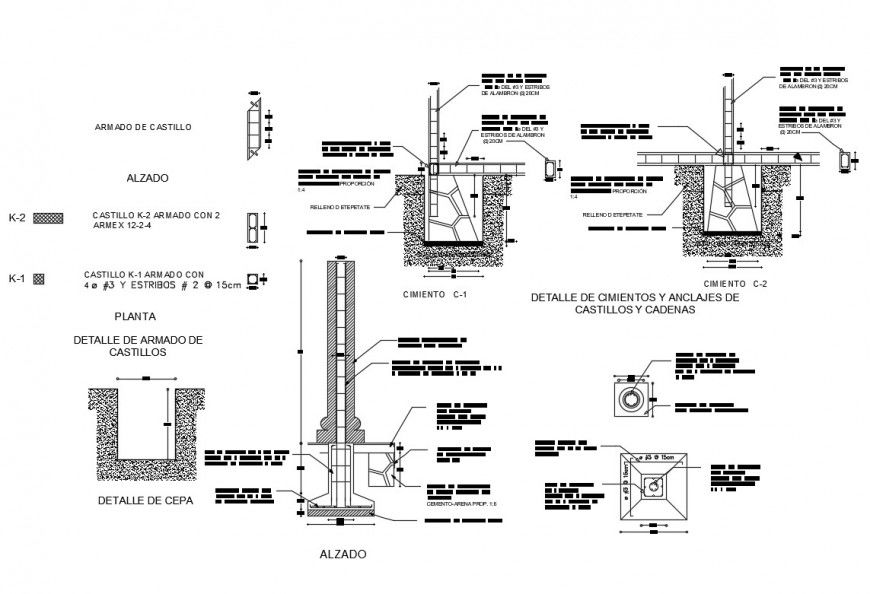
Detail of foundations and anchors of castles and chains that includes a detailed view of the foundation, side typical shoe, typical central shoe, columns, foundations, shoes, cistern tank, walls of concr. arm., beams flat, peralted beams, foundation beams, (cement: sand: crushed stone), typical detail of reinforcement and ended of walls of masonry, detail of cistern, cure the concrete by wet way minimum 7 days, - avoid splices and overlaps in areas of maximum effort and much more of foundation details.
File Type:
DWG
File Size:
77 KB
Category::
Construction
Sub Category::
Construction Detail Drawings
type:
Gold

Uploaded by:
Eiz
Luna

