House distribution plan with furniture layout cad drawing details dwg file
Description
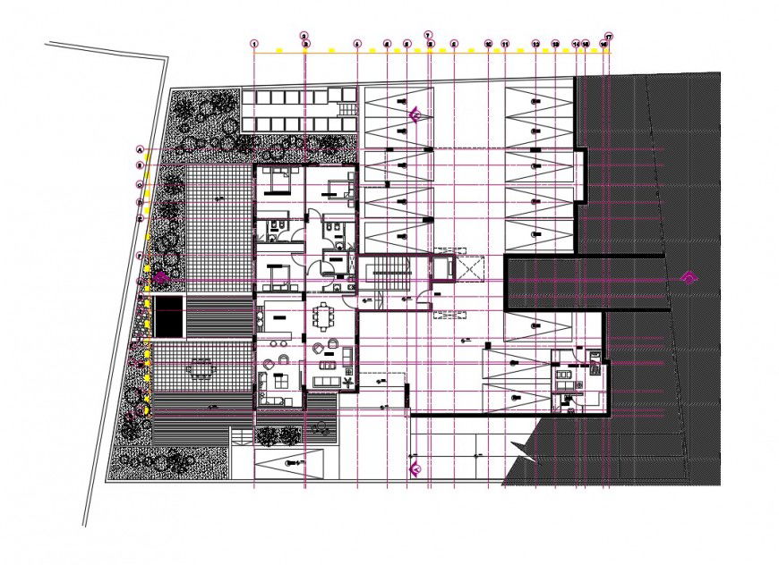
House distribution plan with furniture layout cad drawing details that includes a detailed view of main entry gate, parking area, garden, tree area, cover plan details, main entry house door, drawing room, lift lobby, passage, corridor, living room, family hall, kitchen, dining area, indoor staircases, laundry area, balcony, bedroom, master bedroom, toilets and bathroom, indoor doors, furniture details and much more of house details.

Uploaded by:
Eiz
Luna

