Detail 2d view of construction block of RCC structure autocad file
Description
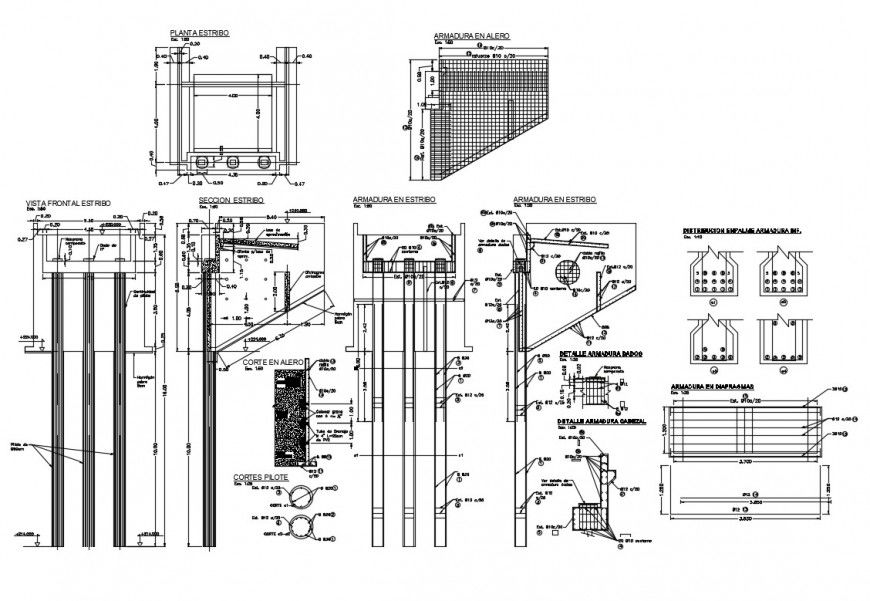
Detail 2d view of construction block of RCC structure autocad file, concrete masonry detail, dimension detail, reinforcement detail in tension and compression zone, hatching detail, bar dimension detail, main and distribution bars detail, hook up and bent up bars detail, overlapping detail, scale detail, etc.
File Type:
DWG
File Size:
585 KB
Category::
Construction
Sub Category::
Reinforced Cement Concrete Details
type:
Gold

Uploaded by:
Eiz
Luna

