Elevation and plan restaurant building 2d view CAD block autocad file
Description
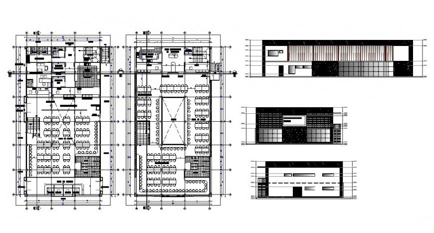
Elevation and plan restaurant building 2d view CAD block autocad file, plan view detail, furniture table and chair detail, floor level detail, wall and flooring detail, section line detail, leveling detail, dining and kitchen area detail, cut out detail, sanitary toilet and wash-basin detail, front elevation detail, side elevation detail, rear elevation detail, RCC structure, etc.

Uploaded by:
Eiz
Luna

