Kitchen construction detail drawing in AutoCAD file.
Description
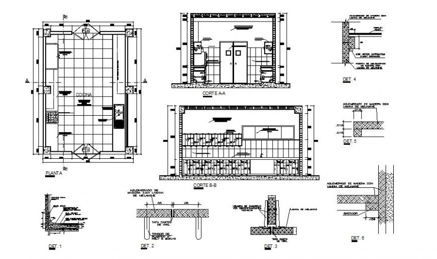
Kitchen construction detail drawing in AutoCAD file. This file includes the detail drawing of the kitchen construction drawing with top view layout plan, wall elevation, furniture detail, cabinet detail, overhead storage detail, platform detail, furniture section detail, description, dimensions, etc.
File Type:
DWG
File Size:
861 KB
Category::
Construction
Sub Category::
Kitchen And Remodeling Details
type:
Gold

Uploaded by:
Eiz
Luna

