Basket ball layout plan of the ground in AutoCAD file.
Description
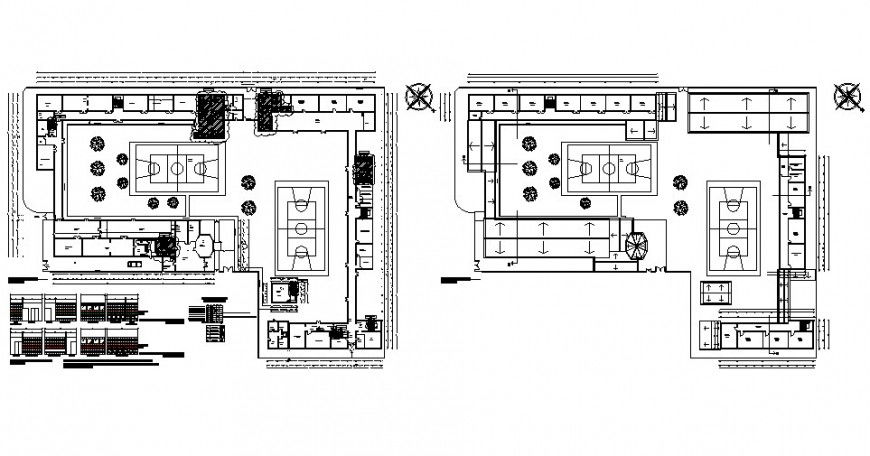
Basket ball layout plan of the ground in AutoCAD file. This file includes the basket ball ground with changing room, two basket ball ground, plantation detail, north direction indication symbols.

Uploaded by:
Eiz
Luna

