Rent a car office layout plan drawing in AutoCAD file.
Description
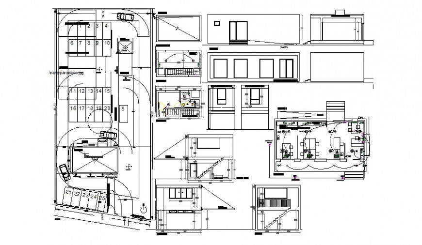
Rent a car office layout plan drawing in AutoCAD file. This file includes the layout plan of the rent a car with stair detail, toilet block detail, electrical layout, dimensions, door detail, canopy detail, etc.
File Type:
DWG
File Size:
221 KB
Category::
Interior Design
Sub Category::
Modern Office Interior Design
type:
Gold

Uploaded by:
Eiz
Luna
