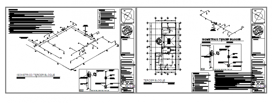
fire installation Isometric drawing of terrace floor in hospital design drawing
Description
Here the fire installation Isometric drawing of terrace floor in hospital design drawing with detail drawing of manual level design with section drawing and general specification mentioned in this auto cad file.
Uploaded by:
Eiz
Luna

