Electrification installation design drawing of single family house design drawing
Description
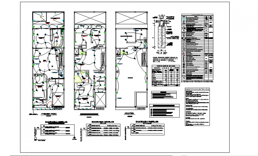
Here the Electrification installation design drawing of single family house design drawing with ground floor, first floor, terrace floor installation design, electrical legending and symbol table mentioned and also mentioned in layout, general specification, unifilar diagram specification table mentioned in this autocad file.
Uploaded by:
Eiz
Luna

