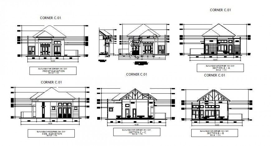
All sided elevation and section details of corner type house dwg file
Description
All sided elevation and section details of corner type house that includes a detailed view of flooring view, doors and windows view, staircase view, balcony view, wall design, dimensions, roof or terrace view, and much more of house details.

Uploaded by:
Eiz
Luna

