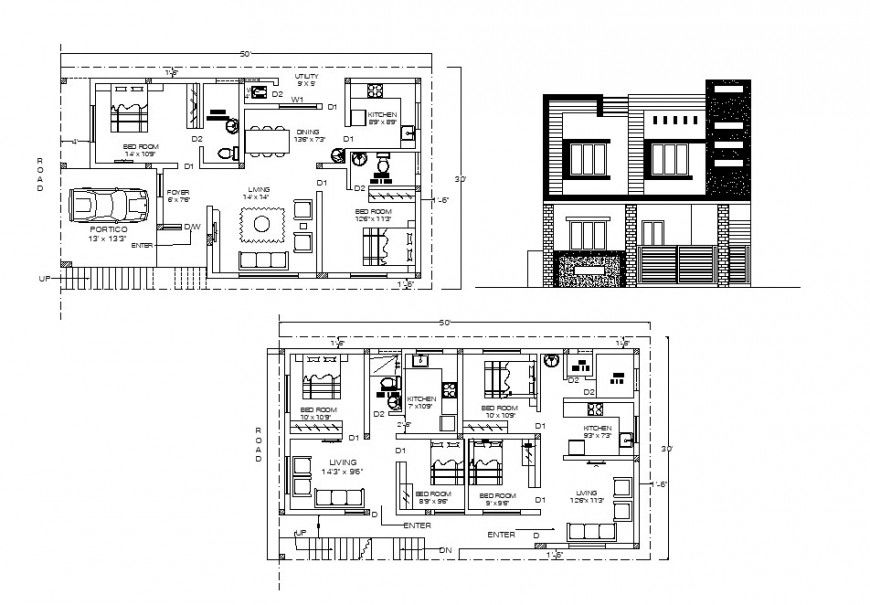
Elevation and plan detail of two-story house layout file in autocad format
Description
Elevation and plan detail of two-story house layout file in autocad format, plan view detail, furniture blocks detail, room dimension detail, parking space detail, sanitary toilet and bathroom detail, bedroom detail, drawing room detail, kitchen and dining area detail, door and window detail, front elevation detail, RCC structure, etc.

Uploaded by:
Eiz
Luna

