Sanitary section, plan and installation details of office building dwg file
Description
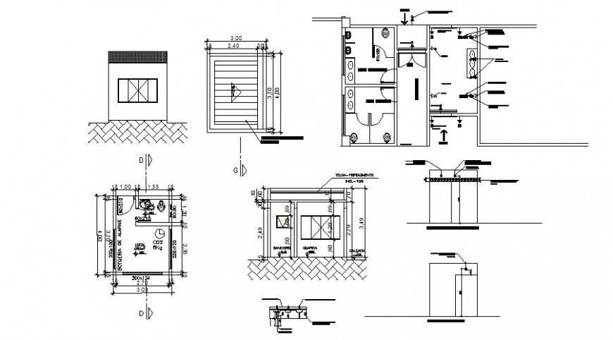
Sanitary section, plan and installation details of office building that includes a detailed view of male toilet sectional details, female toilet sectional details, passage, sanitary equipment installation details, doors and ventilation details, plumbing details, interior details, dimensions details, sporst ground details, all sided elevation details, wall section details and much more of sanitary installation details.
File Type:
DWG
File Size:
3.5 MB
Category::
Interior Design
Sub Category::
Bathroom Interior Design
type:
Gold

Uploaded by:
Eiz
Luna

