Architectural proposed layout plan of wood housing design drawing
Description
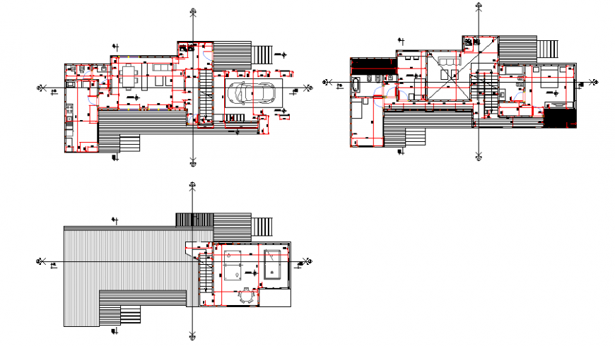
Here the Architectural proposed layout plan of wood housing design drawing with ground floor design drawing, first floor design drawing and terrace floor design drawing , working layout design, center line layout design drawing in this auto cad file.
Uploaded by:
Eiz
Luna

