Drawing room and bedroom elevation and plan cad drawing details dwg file
Description
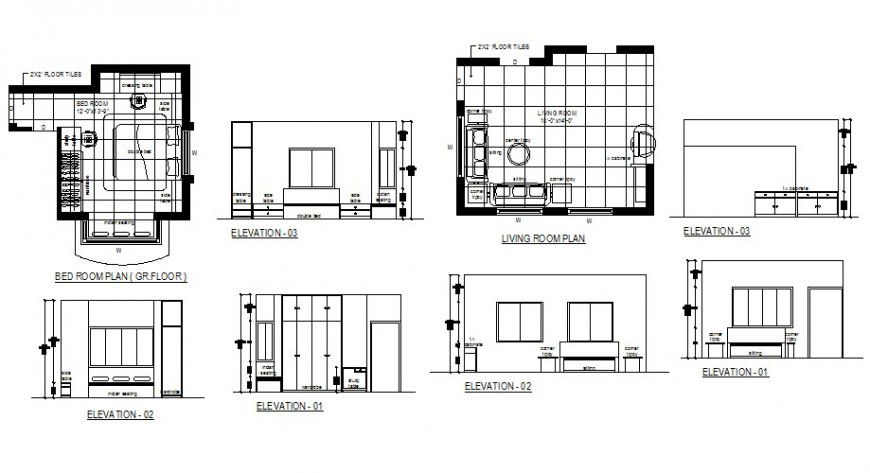
Drawing room and bedroom elevation and plan cad drawing details that includes a detailed top view with departments view, furniture view, sofa set view, main hall, doors and windows view, double bed view, dimensions details, ceiling details, interior detais and much more of drawing room project.
File Type:
DWG
File Size:
426 KB
Category::
Interior Design
Sub Category::
Living Room Interior Design
type:
Gold

Uploaded by:
Eiz
Luna

