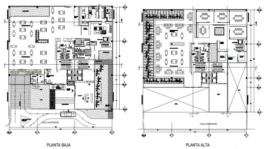
Two story restaurant building layout plan in autocad format
Description
Two story restaurant building layout plan in autocad format, plan view detail, furniture blocks detail, door and window detail, staircase detail, dimension detail, hidden line detail, floor level detail, table and chair detail, sanitary toilet and wash-basin detail, road network detail, vehicle detail, RCC structure, etc.

Uploaded by:
Eiz
Luna

