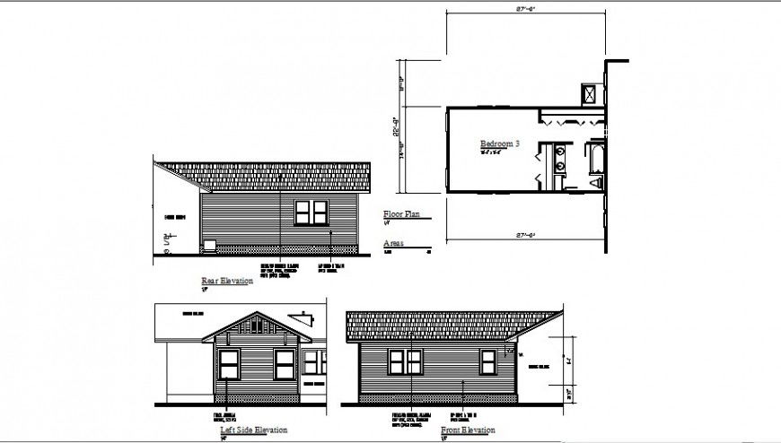
Bedroom all sided elevation and plan details with furniture dwg file
Description
File Type:
DWG
File Size:
180 KB
Category::
Interior Design
Sub Category::
Bathroom Interior Design
type:
Gold

Uploaded by:
Eiz
Luna
File Type:
File Size:
Category::
Sub Category::
type:

Uploaded by:
Luna