Detail 2d plan of an apartment building with furniture blocks layout autocad file
Description
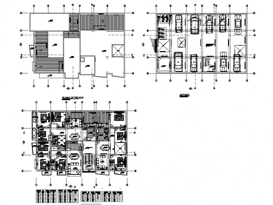
Detail 2d plan of an apartment building with furniture blocks layout autocad file, wall and flooring detail, parking space detail, hatching detail, bedroom detail, sanitary toilet and bathroom detail, living room detail, dining and kitchen area detail, dimension detail, hidden line detail, specification detail, vehicle detail, terrace plan detail, stairway detail, RCC structure,etc.

Uploaded by:
Eiz
Luna

