Construction plan and section of office building 2d view layout AutoCAD file
Description
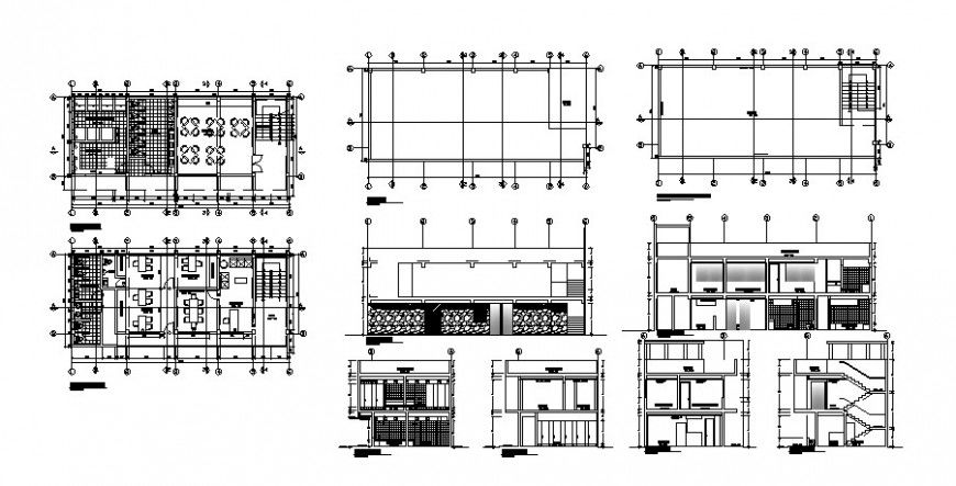
Construction plan and section of office building 2d view layout AutoCAD file, plan view detail, door and window detail,section line detail, hatching detail, wall and flooring detail, rooms and cabins detail, section detail, leveling detail, floor level detail, terrace plan detail, furniture blocks detail, table and chair detail, sanitary toilet detail, RCC structure, etc.

Uploaded by:
Eiz
Luna

