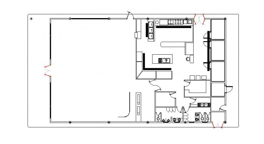
Detail single story restaurant building layout file in Autocad format
Description
Detail single story restaurant building layout file in Autocad format, plan view detail, kitchen area detail, door and window detail, sanitary toilet and washbasin detail, floor level detail, wall and flooring detail, RCC structure, etc.

Uploaded by:
Eiz
Luna

