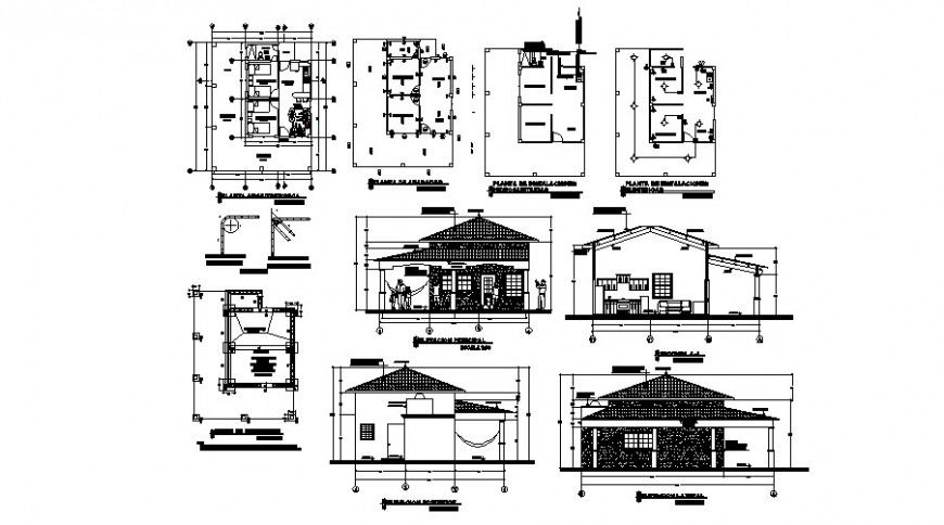
Small raw house working drawing in dwg file.
Description
Small raw house working drawing in dwg file. Detail working drawing of raw house, ground floor working plan, with section line and dimensions details, door and window details, drainage details, front elevation and side elevation drawing, section detail.

Uploaded by:
Eiz
Luna

