Toilet with bathtub detail drawing in AutoCAD file.
Description
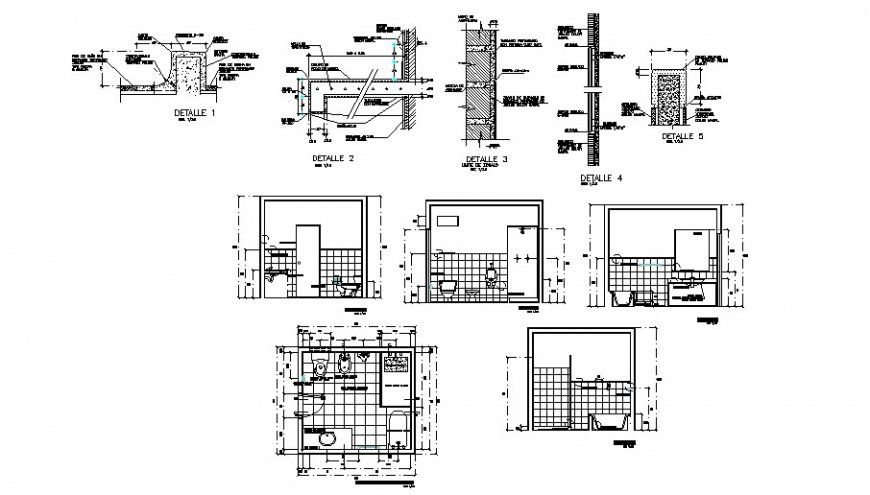
Toilet with bathtub detail drawing in AutoCAD file. This file includes the detail drawing of the toilet with top view plan, tiling detail, floor plan, wall elevation, sanitary fitting detail, section detail, typical toilet detail, dimensions, description, etc.
File Type:
DWG
File Size:
209 KB
Category::
Interior Design
Sub Category::
Bathroom Interior Design
type:
Gold

Uploaded by:
Eiz
Luna

