Market building detail plan, elevation and section 2d view autocad file
Description
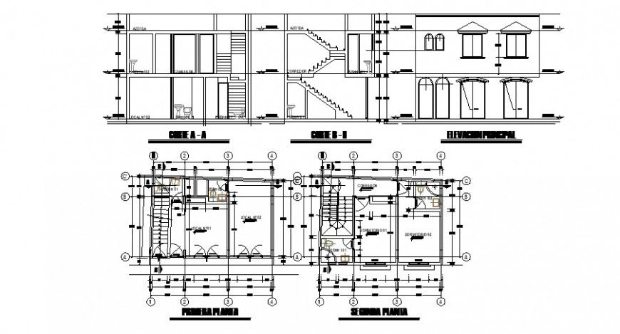
Market building detail plan, elevation and section 2d view autocad file, plan view detail, wall and flooring detail, dimension detail, door detail, section line detail, floor level detail, staircase detail, section A-A detail, front elevtaion detail, section B-B detail, saniatry toilet and washbasin detail, dimension detail, etc.
File Type:
DWG
File Size:
431 KB
Category::
Interior Design
Sub Category::
Showroom & Shop Interior
type:
Gold

Uploaded by:
Eiz
Luna

