Architectural based project of house room design drawing
Description
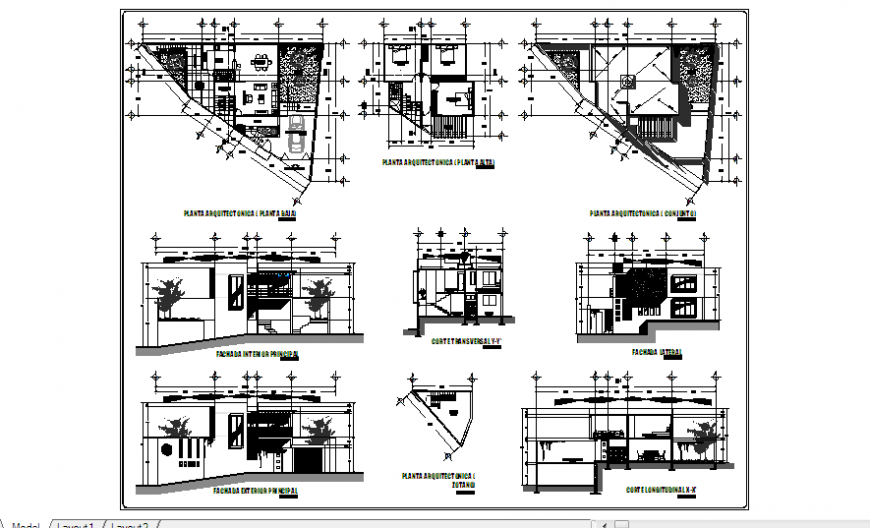
Here the Architectural based project of house room design drawing with different type plot area design house with ground floor, first floor, terrace floor layout design drawing, working layout design drawing, center line layout design drawing, interior elevation, exterior elevation design,longitudinal section design drawing, lateral elevation design drawing, transverse section design drawing in this auto cad file.
Uploaded by:
Eiz
Luna

