Structure based project of house room design drawing
Description
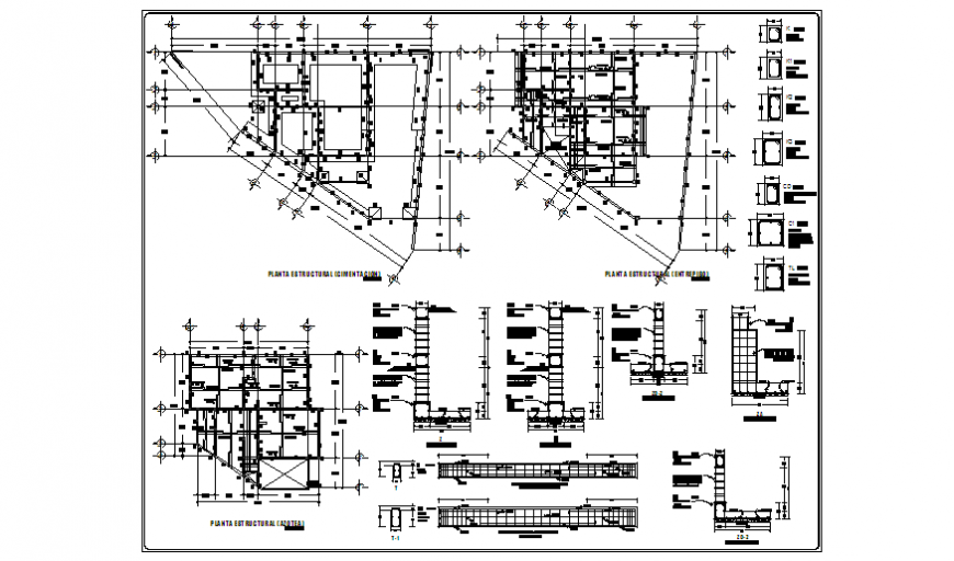
Here the Structure based project of house room design drawing with foundation plan, interpretation design drawing reinforcement bar design drawing with all detailing, foundation section design drawing, horizontal beam design drawing withall detailing design drawing in this auto cad file.
File Type:
DWG
File Size:
4.4 MB
Category::
Construction
Sub Category::
Construction Detail Drawings
type:
Gold
Uploaded by:
Eiz
Luna

