Kitchen with dining area detail 2d view layout file in autocad format
Description
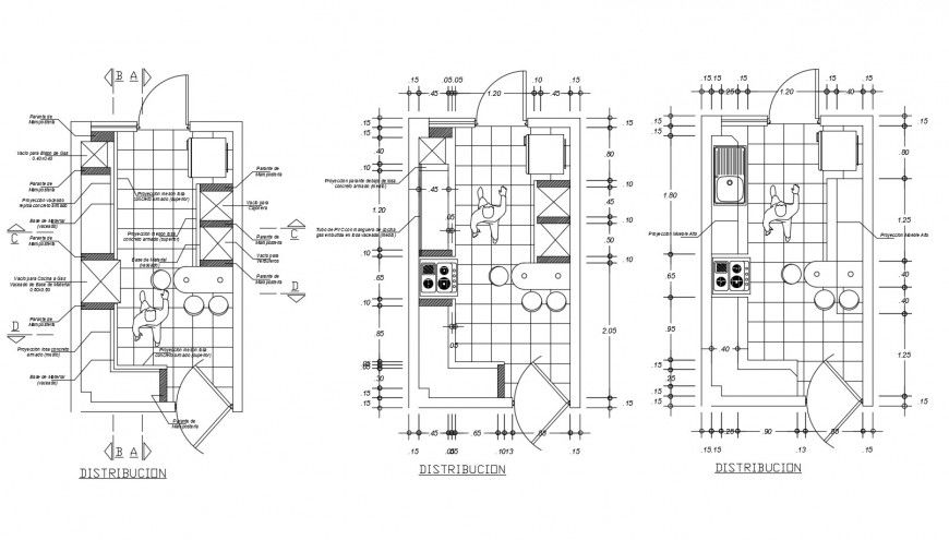
Kitchen with dining area detail 2d view layout file in autocad format, plan view detail, wall and flooring detail, dimension detail, section line detail, door and window detail, platform detail, cabinet and shelves detail, kitchen sink detail, gas-stove detail, naming text detail, dining table and char detail, refrigerator detail, etc.
File Type:
DWG
File Size:
1.2 MB
Category::
Construction
Sub Category::
Kitchen And Remodeling Details
type:
Gold

Uploaded by:
Eiz
Luna

