Section of kitchen construction block detail 2d view autocad file
Description
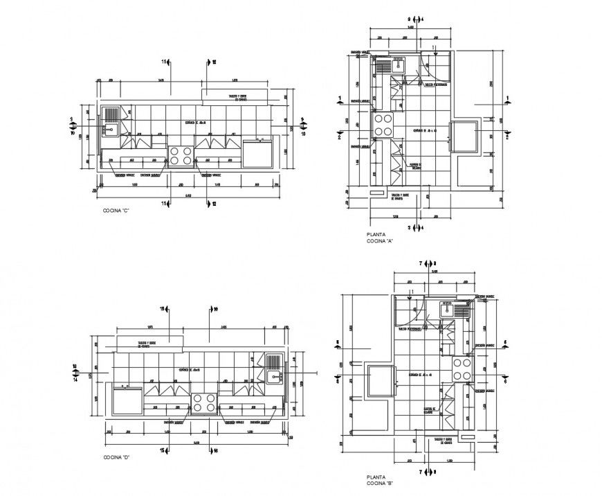
Section of kitchen construction block detail 2d view autocad file, plan view detail, section line detail, kitchen appliances and furniture detail, section line detail, wall and flooring detail, platform detail, gas-stove detail, cabinet and shelves detail, hatching detail, drawers and racks detail, kitchen sink detail, etc.
File Type:
DWG
File Size:
309 KB
Category::
Construction
Sub Category::
Kitchen And Remodeling Details
type:
Gold

Uploaded by:
Eiz
Luna

