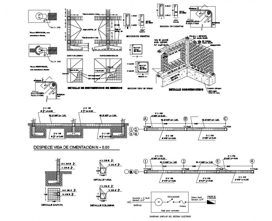
Different reinforced concrete cement (RCC) structure autocad file
Description
Different reinforced concrete cement (RCC) structure autocad file, reinforcement detail in tension and compression zone, concrete masonry detail, bar dimension detail, main and distribution bars detail, effective cover detail, hatching detail, cut out detail, brick masonry wall detail, top elevation detail, column structure detail, RCC structure, footing detail, etc.
File Type:
DWG
File Size:
2.6 MB
Category::
Construction
Sub Category::
Reinforced Cement Concrete Details
type:
Gold

Uploaded by:
Eiz
Luna
_structure_autocad_file_18102018034914.jpg)
