Restaurant building structure plan detail 2d view autocad file
Description
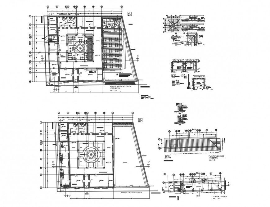
Restaurant building structure plan detail 2d view autocad file, plan view detail, wall and flooring detail, dimension detail, door and window detail, floor level detail, furniture blocks detail, column detail, foundation footing detail, concrete masonry detail, reinforcement detail in tension and compression zone,table and chair detail, reinforced concrete cement (RCC) structure, etc.

Uploaded by:
Eiz
Luna

