Multi-family housing apartment flats detailed architecture project dwg file
Description
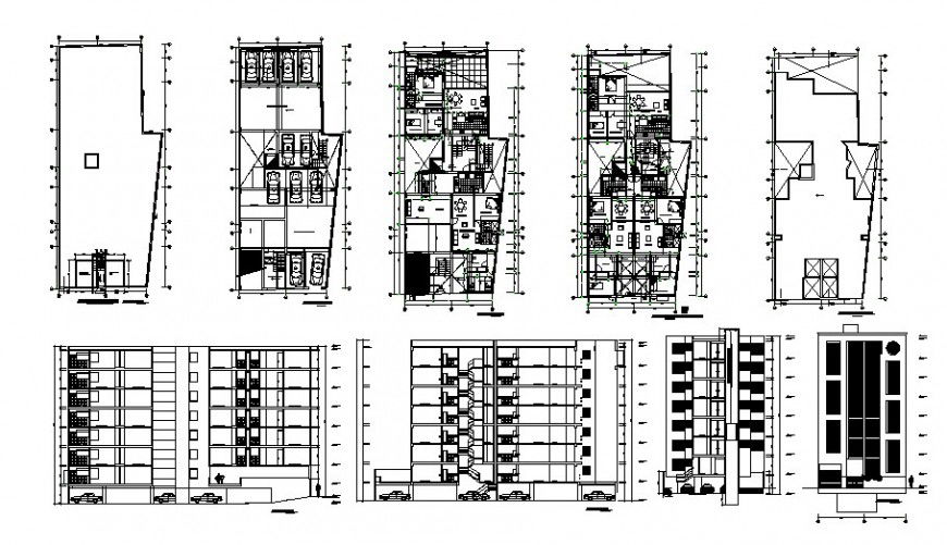
Multi-family housing apartment flats detailed architecture project that includes a detailed view of flooring view, doors and windows view, staircase view, balcony view, wall design, dimensions, roof or terrace view, main entry house door, drawing room, living room, family hall, kitchen, dining area, indoor staircases, laundry area, balcony, bedroom, master bedroom, toilets and bathroom, indoor doors, furniture details and much more of apartment building details.

Uploaded by:
Eiz
Luna

