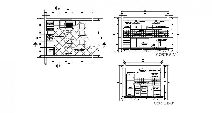
2d view plan and section of kitchen construction with furniture block layout dwg file

2d view plan and section of kitchen construction with furniture block layout dwg file
Profile

Uploaded by:

Eiz

Luna

Description

2d view plan and section of kitchen construction with furniture block layout dwg file, front elevation detail, cabinet and shelves detail, platform detail, rack and drawers detail, kitchen sink detail, scale 1:20 detail, gas-stove detail, dimension detail, section detail, different sections detail, refrigerator detail, door and window detail, exhauster chimney detail, etc.

Profile

Uploaded by:

Eiz

Luna

find Latest

Related Files

WhatsApp Chat