Proposed layout plan of House design drawing in Ireland.
Description
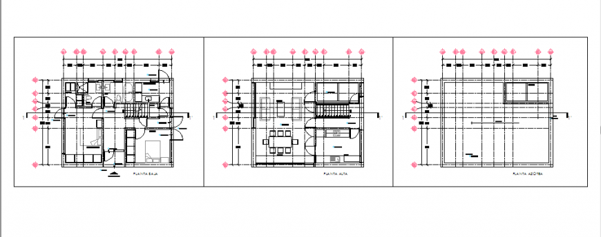
Here the Proposed layout plan of House design drawing in Ireland with ground floor design drawing, first floor design drawing, terrace floor plan design drawing, working layout plan design drawing, working layout design drawing, center line layout design drawing, furniture layout design drawing in this auto cad file.
Uploaded by:
Eiz
Luna

